723 Rue Magnone
Granby, Estrie J2H3J4
Appartement | MLS: 20910708
349 900 $
Description
Découvrez le 723 rue Magnone à Granby, un condo lumineux grâce à sa fenestration abondante, étant situé en coin de bâtiment. Son orientation sud-ouest vous offre un ensoleillement optimal et de magnifiques soirées sur la terrasse au coucher du soleil. Il propose 2 chambres de bonnes dimensions, un bureau (ou petite chambre d'enfant), une salle de bain complète, une salle de lavage indépendante ainsi qu'un vaste espace à aire ouverte incluant cuisine avec îlot, salle à manger et salon. Idéal comme premier achat ou pour simplifier votre quotidien !
Découvrez le 723 rue Magnone à Granby, un condo lumineux situé dans un coin de bâtiment, offrant une abondante fenestration qui baigne les pièces de lumière naturelle tout au long de la journée. Son orientation sud-ouest permet de profiter d'un ensoleillement optimal et de magnifiques couchers de soleil depuis la terrasse. Cette unité propose deux chambres de bonnes dimensions, un bureau pouvant servir de petite chambre d'enfant, une salle de bain complète, une salle de lavage indépendante et un vaste espace à aire ouverte regroupant cuisine avec îlot, salle à manger et salon, idéal pour recevoir ou simplement profiter d'un quotidien confortable. Que vous cherchiez votre premier condo ou un espace plus facile à entretenir, ce condo répond parfaitement à ces besoins.
L'emplacement est un atout majeur : à seulement 5 minutes en voiture du magnifique Lac Boivin, parfait pour les promenades, le jogging, le vélo et la détente en famille ou entre amis. Pour les amateurs de plein air et de ski, la Montagne de Bromont se trouve à moins de 20 minutes, offrant ski alpin, planches à neige, sentiers de vélo de montagne et randonnée. La région de Granby combine les avantages d'une vie urbaine pratique avec une proximité à la nature, incluant le Zoo de Granby, plusieurs parcs, écoles et services essentiels à proximité.
Le quartier est calme et convivial, idéal pour les jeunes familles, les professionnels ou les personnes souhaitant simplifier leur mode de vie tout en restant proches des commodités. Les déplacements sont faciles grâce à l'accès rapide aux routes principales et aux services de transport. Le secteur attire également pour sa qualité de vie, son environnement sécuritaire et son dynamisme communautaire.
Ce condo représente donc une occasion unique d'allier confort moderne, luminosité, espace fonctionnel et localisation stratégique à Granby. Que ce soit pour profiter des activités estivales au Lac Boivin, des sports d'hiver à Bromont ou simplement pour vivre dans un environnement tranquille et pratique, cette unité saura répondre à toutes vos attentes.
*Les mesures du plan 2D ainsi que sur la fiche descriptive sont approximative, mais considéré comme hautement fiable. En cas de doute, vérifier les mesures.
Inclus : Électroménager (réfrigérateur, four, lave-vaisselle, hote, laveuse & sécheuse), Habillage de fenêtre sauf rideaux, luminaires
Exclus : Meubles meublants et effets personnel du VENDEUR
Location
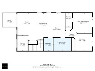
Détails des pièces
| Chambre | Dimensions | Niveau | Revêtement |
|---|---|---|---|
| Bureau à domicile | 6.9 x 9.7 P | 3ième étage | Plancher flottant |
| Bureau à domicile | 6.9 x 9.7 P | 3ième étage | Plancher flottant |
| Salon | 12.1 x 17.1 P | 3ième étage | Plancher flottant |
| Salon | 12.1 x 17.1 P | 3ième étage | Plancher flottant |
| Salle à manger | 7.11 x 16.4 P | 3ième étage | Plancher flottant |
| Salle à manger | 7.11 x 16.4 P | 3ième étage | Plancher flottant |
| Cuisine | 9.10 x 14.11 P | 3ième étage | Céramique |
| Cuisine | 9.10 x 14.11 P | 3ième étage | Céramique |
| Salle de lavage | 5.6 x 8.2 P | 3ième étage | Plancher flottant |
| Salle de lavage | 5.6 x 8.2 P | 3ième étage | Plancher flottant |
| Salle de bains | 11.0 x 8.2 P | 3ième étage | Céramique |
| Salle de bains | 11.0 x 8.2 P | 3ième étage | Céramique |
| Chambre à coucher | 11.7 x 10.9 P | 3ième étage | Plancher flottant |
| Chambre à coucher | 11.7 x 10.9 P | 3ième étage | Plancher flottant |
| Chambre à coucher principale | 12.2 x 12.4 P | 3ième étage | Plancher flottant |
| Chambre à coucher principale | 12.2 x 12.4 P | 3ième étage | Plancher flottant |
Caractéristiques
| Fenêtres | Aluminium, PVC |
|---|---|
| Restrictions/Permissions | Animaux permis sous conditions |
| Allée | Asphalte |
| Proximité | Autoroute/Voie rapide, Autre, Cegep, École primaire, École secondaire, Garderie/CPE, Piste cyclable, Transport en commun |
| Équipement disponible | Balcon privé, Échangeur d'air, Thermopompe murale |
| Toiture | Bardeaux d'asphalte |
| Revêtements | Brique, Vinyle |
| Services disponibles | Détecteur d'incendie |
| Salle de bains/salle d'eau | Douche indépendante |
| Énergie pour le chauffage | Électricité |
| Stationnement | Extérieur |
| Type de fenêtre | Manivelle, Porte-fenêtre |
| Armoires | Mélamine |
| Système d'égouts | Municipal |
| Approvisionnement en eau | Municipalité |
| Mode de chauffage | Plinthes électriques |
| Zonage | Résidentiel |
| Particularités | Unité de coin |